Nuevo proyecto para una vivienda unifamiliar de diseño en Morales del Vino, Zamora, a cargo de nuestro estudio Dolmen Arquitectos.
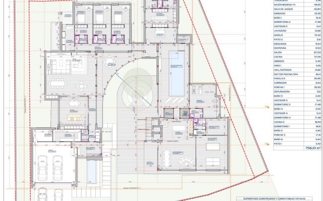
La vivienda se distribuye en una sola planta de 756,10 metros cuadrados útiles y cuenta con cuatro dormitorios y seis baños.
Client
Privado
Project Date
2021
Category
Architecture · Arquitectura · Single family homes · Viviendas unifamiliares













