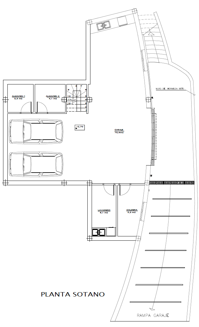
Dolmen Arquitectos ha proyectado esta vivienda unifamiliar en Castiello que se desarrolla de una forma poco convencional: planta sótano, planta baja o de acceso y bajocubierta. El sótano se utilizará como garaje, bodega y almacén por el promotor.
La planta baja se organiza en dos áreas claramente diferenciadas, separadas por un distribuidor que actúa a su vez como hall de entrada. Por un lado, se sitúa la zona pública de la vivienda, destinada a la vida diaria; por otro, la zona privada, donde se ubica el dormitorio principal, con salida directa al jardín.
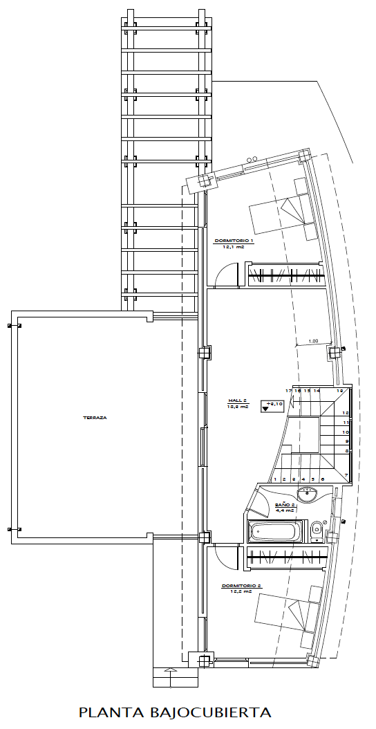
La planta bajocubierta se destina también a uso privado, albergando los dormitorios secundarios. En ella se dispone un espacio común de distribución que funciona como biblioteca, desde el cual se accede a las habitaciones y a la terraza superior.
Aprovechamiento de las vistas y de la luz natural
La orientación de la vivienda constituye el principal condicionante del proyecto. Se ha buscado una apertura clara hacia la luz natural, el soleamiento y las vistas sobre el valle del municipio, favoreciendo especialmente las orientaciones sur y oeste.
Como resultado de esta estrategia, el salón se abre mediante una gran cristalera que convierte este espacio en una zona de disfrute y relax, estableciendo una relación directa con el entorno y las vistas, elementos clave en la concepción del proyecto.
Desde el hall de entrada se accede, mediante una escalera, a la planta sótano, mientras que la comunicación con la planta superior se realiza a través de una escalera situada en el salón. Esta disposición favorece la continuidad y fluidez espacial, dotando a la vivienda de un carácter singular.
En este enlace puedes ver más viviendas unifamiliares proyectadas por Dolmen Arquitectos.










