Se trata de proyectar una vivienda unifamiliar aislada en Veranes, Gijón, que dé cabida a una familia compuesta por un matrimonio y dos hijos.
Utilizamos la orientación para maximizar la luz natural y proteger de los vientos fríos
Uno de los principales condicionantes iniciales del diseño es el aprovechamiento máximo de las vistas que ofrece la parcela y de la luz solar. De esta forma, se propone una vivienda completamente abierta a las visuales que desde la parcela se producen, totalmente orientadas al sureste; además de la orientación de las propias estancias hacia el sur, se busca crear espacios cubiertos exteriores hacia esta orientación, que puedan ser usados en épocas estivales.
Al mismo tiempo que la vivienda ofrece sus mayores superficies acristaladas hacia el sur, se “cierra” notoriamente hacia el norte, donde los huecos son contados y de pequeño tamaño. De esta forma, se consigue que la propia vivienda actúa a modo de “pantalla protectora” de los espacios al sureste, resguardando estos espacios de los vientos fríos dominantes del nordeste.
Tenemos en este caso, un condicionante moderado de pendiente propia de la parcela, ya que es algo acusada al sureste; al contar con un vial de acceso rodado lateral por el oeste, y por tanto sin problemas para el acceso a garaje, optamos por ubicar la vivienda en la parte más elevada de la parcela.
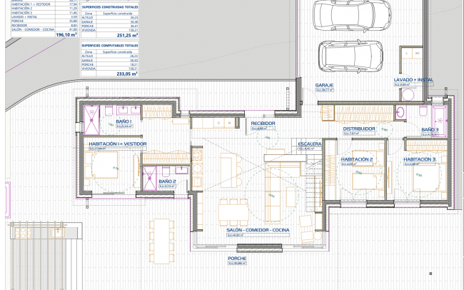
El acceso se sitúa en la parte oeste de la parcela, debido a la ubicación de la carretera de entrada a la parcela, y dada la zona en la que se encuentra la vivienda, a las afueras de Gijón, la mayoría de los accesos se producirán en coche. Con este argumento, se establece un amplio camino que permite acceder a la zona interior de garaje, además de un acceso peatonal inmediato a este acceso rodado, y que permite la entrada directa a la vivienda.
Jugamos con la distribución para dar mayor volumen a las estancias principales
El programa interior se divide en una planta sobre rasante, situando los espacios vivideros en la zona central y las zonas de noche a ambos lados de esta, separando el dormitorio principal con su vestidor y baño, de los otros dos dormitorios; la planta altillo se aprovecha con un pequeño despacho en bajocubierta, buscando así generar un mayor volumen en las estancias principales.
La conexión entre ambas plantas es directa a través del espacio de doble altura del salón-cocina-comedor, que organiza las estancias a su alrededor.
La composición formal de la vivienda se basa en un volumen dispuesto de acuerdo a las vistas y a la orientación solar. Un volumen central con altillo en bajo cubierta acoge las estancias principales, mientras que el volumen menor a cada lado de este, pero ubicado en menor altura.
Con la prolongación de la cubierta, se genera el porche, otorgando así unidad al conjunto.
Materiales con la mejor conservación y el mínimo mantenimiento
En cuanto a los materiales de cerramiento, se plantea el uso de la madera sintética, piedra y los colores claros; en todo caso, los materiales utilizados serán propicios para que exijan mínimo mantenimiento y con la mejor conservación.
Las cubiertas serán inclinadas, con acabados en teja cerámica, de acuerdo con lo establecido en el PGO de Gijón.
En este enlace podrán ver más viviendas unifamiliares proyectadas por Dolmen Arquitectos.
Client
Privado
Project Date
2022
Category
Architecture · Arquitectura · Single family homes · Viviendas unifamiliares













