Reforma interior de vivienda en Gijón
Piso con galería, salón comedor, cocina con tabique de vidrio y tres dormitorios
Tras la restauración de fachadas que realizamos en este edificio situado en la calle Instituto nº 8, en Gijón, llevamos a cabo ahora la reforma de sus espacios interiores, comenzando por una de sus viviendas.
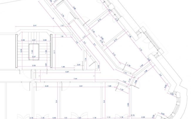
La distribución de las estancias en este piso no era útil ni permitía disfrutar de la calidad del espacio existente, como se puede apreciar en el plano. Por esta razón, y tras la eliminación de la distribución interior existente en el piso, se plantea una reforma integral del uso de esta vivienda.
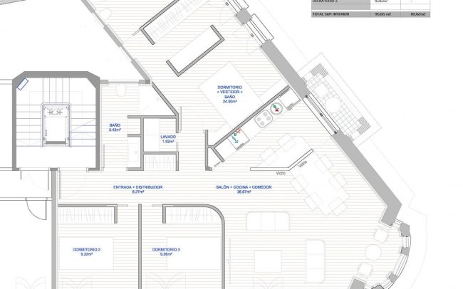
Convertimos la esquina-galería en la zona más importante de la vivienda, un elemento en torno al cual se organizan los espacios de uso común. Se obtiene así un espacio abierto que contiene tanto la estancia común como el comedor, ubicando la cocina de forma anexa a este espacio conjunto. Sin embargo, separamos la cocina mediante un tabique de vidrio con puertas correderas también de vidrio, ya que los clientes no querían, en este caso, un concepto abierto.
Dos dormitorios orientación sur
Los espacios se han distribuido de manera que todas las estancias de hábitat se encuentran situadas hacia la calle. El programa necesario en este caso conllevó ubicar dos dormitorios orientados al sur, y una habitación principal que cuenta con vestidor y baño privado con orientación este e iluminación tanto por fachada principal como por el patio del edificio.
El programa de la vivienda se completa con una zona de lavado y un segundo aseo que da servicio a los dos dormitorios, además de las zonas ya mencionadas de salón-comedor y cocina.
Refuerzo de los forjados
La mejora de la vivienda no es sólo interior, ya que se realiza un refuerzo de los forjados, que se encontraban en estado muy defectuoso. Incorporamos además un trasdosado perimetral en toda la vivienda, que cuenta con aislamiento de lana de roca de 40 mm. -tanto en paredes como en suelo y techo-, lo que produce una mejora sustancial en cuanto a las necesidades energéticas de la vivienda.
El estado actual de las obras, con la demolición de la tabiquería existente, nos permite observar el espacio abierto disponible, con la característica esquina-galería que será el eje de la vivienda.
Client
Privado
Project Date
2016












