Dolmen Arquitectos se encargó de la reforma integral de esta vivienda en la céntrica calle Santa Doradía de Gijón.
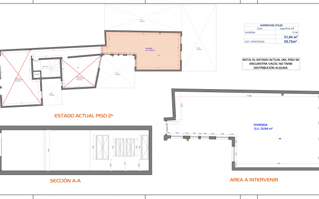
En el estado inicial del que partimos, el piso estaba completamente vacío, sin distribución alguna. Aprovechamos al máximo los poco más de 50 m2 con los que cuenta la vivienda, distribuyendo el espacio en salón-cocina-comedor, una habitación, pasillo, hall y un baño.
Jugando con la iluminación, los espacios abiertos, los colores claros en suelo, muebles y paredes, conseguimos crear una mayor sensación de luminosidad y amplitud.
En este enlace pueden consultar más proyectos de reforma interior de vivienda llevados a cabo por Dolmen Arquitectos.
Client
Private
Project Date
2024




















