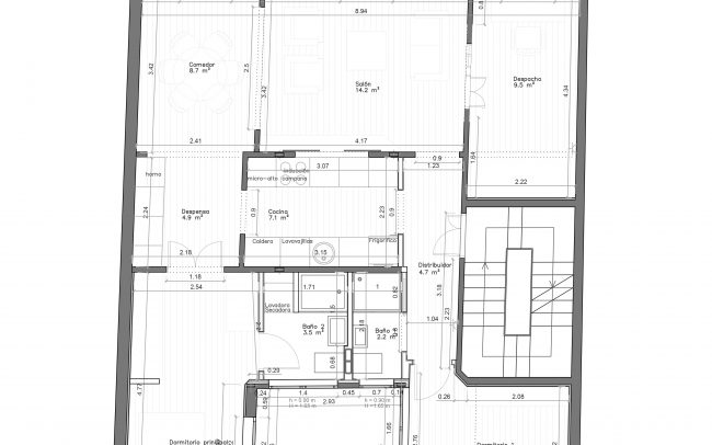
Reforma de vivienda en Gijón

Reforma con mucha personalidad y estilo diferenciado

Reforma de vivienda con mucha personalidad y estilo diferenciado, llevada a cabo por Dolmen Arquitectos en Gijón.

Puedes ver más reformas de viviendas en este enlace.

Privacy Settings
We use cookies to enhance your experience while using our website. If you are using our Services via a browser you can restrict, block or remove cookies through your web browser settings. We also use content and scripts from third parties that may use tracking technologies. You can selectively provide your consent below to allow such third party embeds. For complete information about the cookies we use, data we collect and how we process them, please check our Privacy Policy
Youtube
Consent to display content from - Youtube
Vimeo
Consent to display content from - Vimeo
Google Maps
Consent to display content from - Google