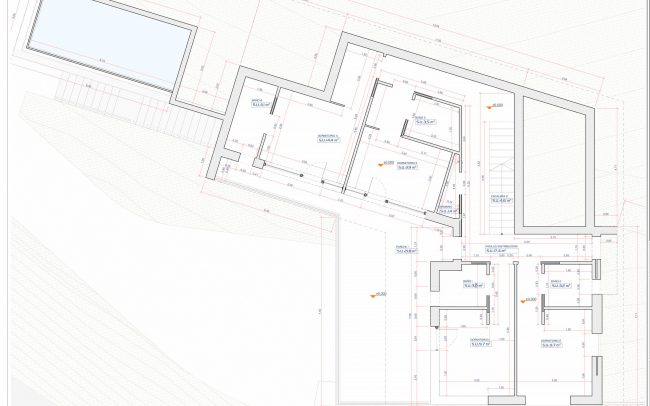
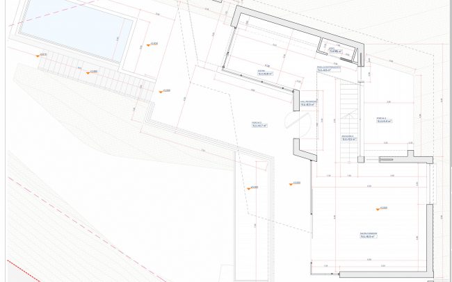
Proyecto de vivienda unifamiliar situada en Cabueñes, Gijón.
Un concepto de nuestro estudio de arquitectura, Dolmen Arquitectos, que aprovecha la pendiente de la parcela para crear un edificio de tres plantas más sótano en el que las terrazas se convierten en un elemento principal.
Client
Privado
Project Date
2021
Category
Architecture · Arquitectura · Single family homes · Viviendas unifamiliares























