Remodelación de local para clínica dental en Santander
Antiguas oficinas reformadas para acoger un centro médico
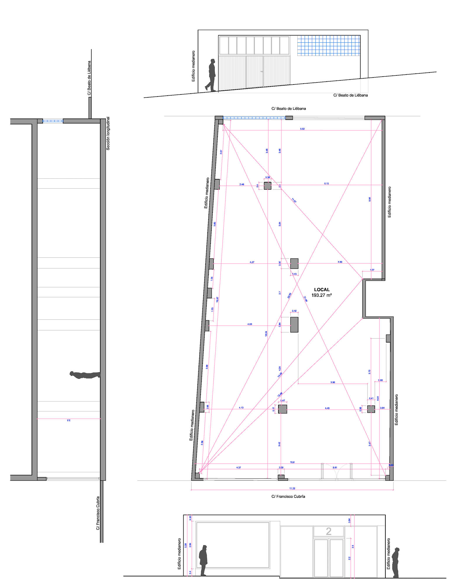
Se trata de un proyecto de remodelación de un local que albergaba anteriormente unas oficinas para cambio de uso a clínica dental en Santander. En la actualidad el local todavía está acondicionado para su uso como oficinas.
Contaba con dos entradas: una con un portón que se encuentra anulado desde el interior mediante un tabique de fábrica (anteriormente daba acceso a vehículos, pues otra de las actividades que se desarrollaron en el establecimiento fue la de taller mecánico de vehículos) y la entrada principal, acristalada por completo.
Interiormente, en cuanto a la distribución, cuenta con un gran espacio diáfano central y otras estancias menores compartimentadas (despachos). Así, a partir de esa distribución se han realizado las mejoras necesarias para el correcto funcionamiento del nuevo uso como clínica dental en Santander.
Client
Particular
Project Date
2016
Category
Architecture · Arquitectura · Clínicas dentales · Dental clinics · Premises · Reforma de locales









