Reforma interior de vivienda en la calle San Bernardo, Gijón
El piso tiene 100 metros y la reforma potenció el concepto abierto y el aprovechamiento de la luz natural
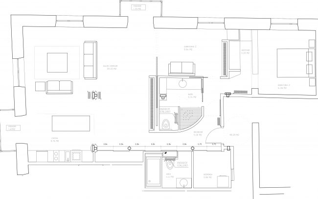
Nuestro estudio de arquitectura e interiorismo Dolmen Arquitectos diseñó la reforma de este piso en Gijón, concretamente en la calle San Bernardo.
El piso reformado cuenta con una superficie de 98,29 metros cuadrados. Está dividido en salón comedor de 39,03 metros cuadrados, cocina con mirador, dos dormitorios, baño, aseo y despensa.
Al estar en esquina y ser una planta elevada, el piso tiene mucha luz natural, lo que tratamos de aprovechar en la reforma.
En este enlace pueden consultar otros proyectos de reforma de pisos que hemos llevado a cabo.
Client
Privado
Project Date
2004







































