Adecuación de local para cafetería en Gijón
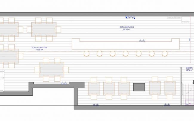
Situado en la Avenida de Schultz, la zona del comedor del nuevo establecimiento se dividirá en dos zonas diferenciadas
Proyecto de adecuación de local para cafetería en Gijón, concretamente en la Avenida de Schultz número 37.
El acceso a la futura cafetería se sitúa en la parte izquierda de la fachada. Dicho acceso comunica directamente con la zona de comedor, que está dividida en dos partes: una con mesas grandes junto al ventanal de la fachada y otra hacia la izquierda del local, con mesas más pequeñas. Entre estas se sitúa la zona de servicio, donde se ubica la barra y es contigua a la cocina. Por último, en la esquina sureste se ubicarán los aseos, siendo uno de ellos adaptado a personas con discapacidad.
El proyecto de adecuación del local también contempla las instalaciones de iluminación, mientras que se mantienen la fontanería y el saneamiento existentes (adecuándolos, eso sí, a la nueva disposición del baño). Asimismo, se dispondrá de una nueva salida de humos hasta la cubierta. Se conservarán también las carpinterías presentes en la fachada principal, manteniendo únicamente el acceso principal.
En este enlace pueden consultar otros proyectos de reforma de local en Gijón y otras ciudades elaborados por nuestro estudio de arquitectura, interiorismo y urbanismo.
Client
Privado
Project Date
2019
Category
Architecture · Arquitectura · Hostelería · Premises · Reforma de locales












