Este piso en la calle Uría, en Oviedo, se encuentra situado en un edificio antiguo y por tanto cuenta con una distribución obsoleta para el promotor. Al tratarse de una pareja, no buscan un elevado número de dormitorios como en la distribución original, sino una serie de espacios comunes más amplios y bien comunicados entre sí.
Siempre tenemos en cuenta la gran importancia tanto de la luz natural como de las vistas, y este piso es perfecto en ambas. Al estar ubicado al final de la calle Uría en cruce con la Avenida de Santander, dispone de una gran amplitud de vistas hacia el monte del Naranco. Estas vistas y la entrada de luz se magnifican al colocar ventanas con un perfil metálico reducido que amplían la superficie de vidrio disponible en el hueco.
Pasillo abierto a la cocina
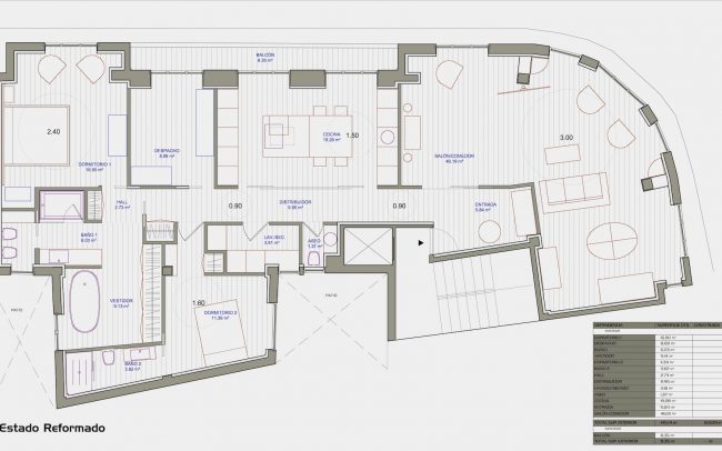
En la distribución original, la cocina aparecía escondida y sin luz natural, y pese a la gran superficie disponible en la vivienda -cuenta con 163 m2 de superficie construida-, no existían zonas comunes amplias, al disponer de cuatro dormitorios y dos zonas de estar separadas.
Nuestra propuesta se basó en mantener la linealidad presente del pasillo, pero abriéndolo a la cocina, que ahora se ubica en el lugar central de la vivienda. Además, al cerrarse la cocina mediante una pared de vidrio con puertas también de vidrio, no existe nunca la sensación de un pasillo simplemente distribuidor de las zonas.
Las estancias ubicadas a la zona secundaria (que no cuentan con vistas) son las zonas no principales para los promotores: un dormitorio de invitados, zona de lavado y aseo. Se encuentran “ocultos” mediante un acabado del distribuidor de madera -incluidas las puertas-, con lo que conseguimos un pasillo homogéneo, que no se ve interrumpido por el ritmo de las puertas y que por tanto no rompe la estética que se buscaba conseguir.
Salón comedor de 46 m2
A ambos lados de la cocina se ubican las otras zonas que más importancia buscaban dar los promotores: el salón-comedor, el despacho y el dormitorio principal. El salón se ubica en la zona curva del edificio, dotándolo así de dos zonas diferenciadas dentro de un mismo espacio de 46 m2. El dormitorio principal se distribuye por las dos zonas del piso, al ubicar dentro del mismo espacio el baño con vestidor, creando así un hábitat individual del resto del piso.
Hemos conseguido en este piso reunir un diseño actual con carácter, guiándonos por la distribución original para conseguir una vivienda con identidad propia y dotada de todas las comodidades que buscaban los propietarios.
Pueden contactar con nosotros si les interesa que analicemos su vivienda actual y proyectemos una reforma integral de la misma.
Fotos: soloperspectiva.com

























