Vivienda unifamiliar entre medianeras en Cimadevilla, Gijón
Con la reforma pasamos de 17 a 47 m2 útiles
El edificio a reformar se encuentra en la parte alta del barrio de Cimadevilla, en Gijón, una edificación entre medianeras con tipología de vivienda unifamiliar popular, pero en mal estado de conservación.
Con 4,02 metros de frente y 5,11 metros de fondo edificable, se trata de una edificación de planta cuadrada, de tipo tradicional a base de medianeras de mampostería de piedra y de fábrica de ladrillo el frente de la vivienda. Tiene acceso desde la calle Atocha a través de una puerta de acceso situada en el lateral izquierdo de la planta baja.
La vivienda reformada, a partir del programa de necesidades presentado por el propietario, se desarrolla en planta baja, primera y bajocubierta. En el resultado formal último se han tenido en cuenta especialmente las condiciones constructivas y compositivas de la edificación tradicional existente, de manera que las dimensiones y disposición de los huecos obedece a las características de los huecos de edificaciones tradicionales existentes, así como a las condiciones estéticas del PERI de Cimadevilla.
La mampostería de piedra de los muros de carga se mantendrá como estructura portante, realizando los paramentos del frente de la vivienda revestidos en piedra en la planta baja, y revestidos en carpintería de madera en la planta superior.
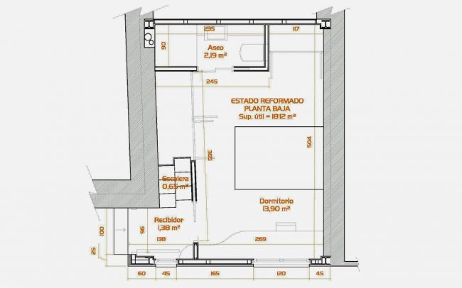
En planta baja se distribuye un dormitorio y un aseo. Un salón-comedor integrado junto con la cocina se ubican en la planta primera. Y por último, se habilita un trastero en el espacio correspondiente a bajocubierta.
Iluminación con huecos y ventanas
Todas las plantas disponen de iluminación, ya sea mediante la apertura de huecos en el plano del tejado para iluminar la estancia de bajocubierta, mediante dos ventanas como ocurre en la planta baja o gracias a dos amplios huecos rasgados en la planta primera.
Gracias a esta intervención hemos conseguido una vivienda que cuenta con 47 m2 útiles, frente a los escasos 17 m2 que tenía previamente, y que disfruta de un programa completo para una casa en pleno centro de Gijón.
Client
Particular
Project Date
2007















