Transformación de local comercial en dos viviendas en Oviedo
En Dolmen Arquitectos hemos desarrollado el proyecto de reforma y cambio de uso de un local de Oviedo, con el objetivo de convertirlo en dos apartamentos independientes.
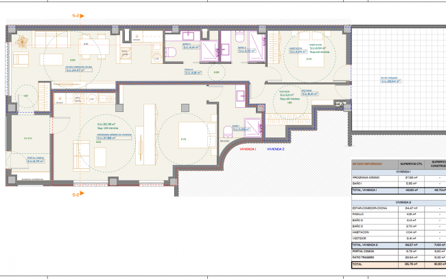
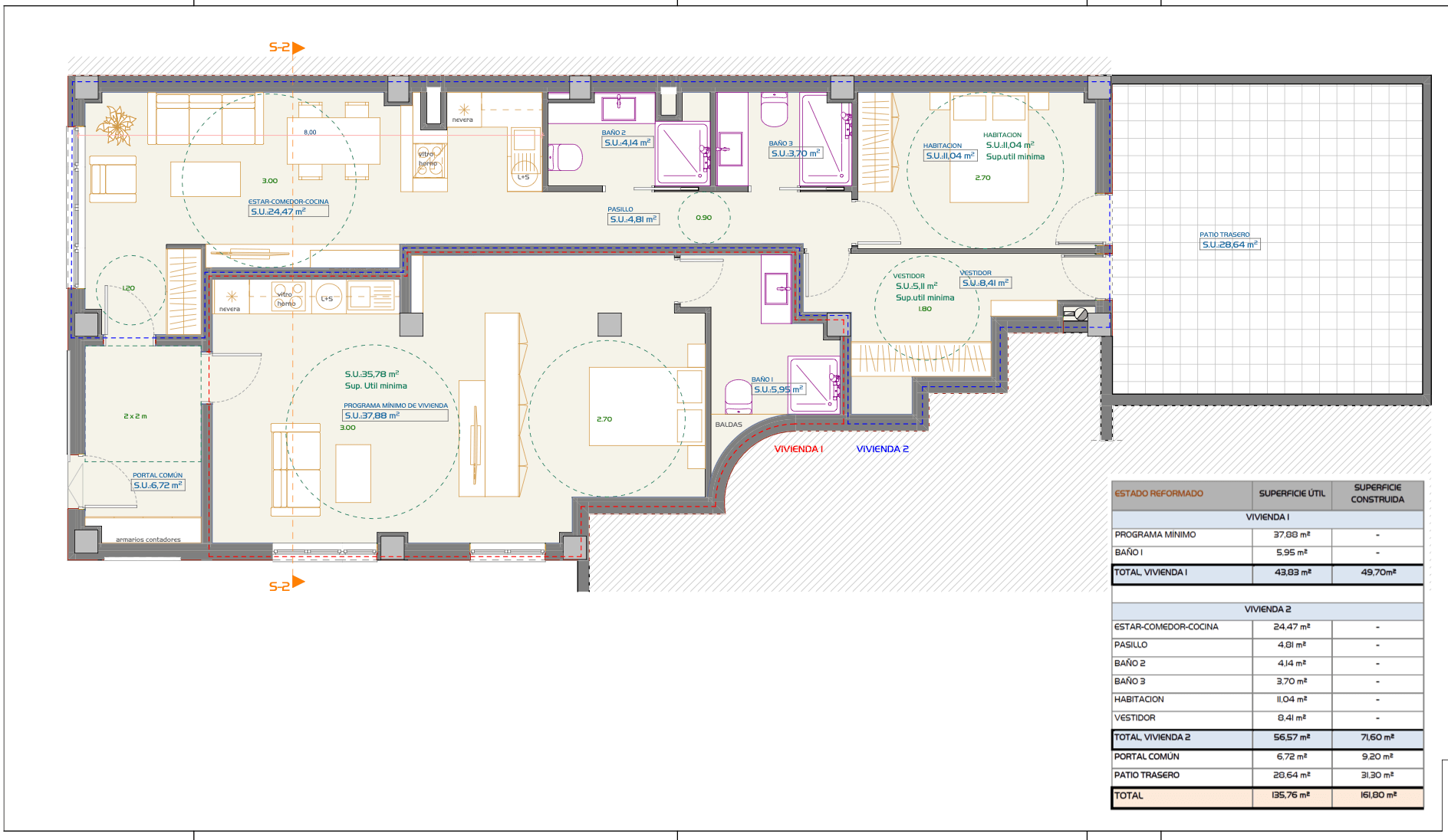
El espacio, ubicado en la planta baja de un edificio residencial, se ha transformado para dar cabida a dos viviendas funcionales y luminosas, manteniendo un acceso común a través de un pequeño portal y un patio trasero que funciona como terraza compartida.
Reto principal: aprovechar la luz natural en las dos viviendas
Uno de los principales retos de diseño fue garantizar el aprovechamiento de la luz natural, organizando las estancias de día (salón y cocina) en las zonas más soleadas, mientras que los baños y espacios de almacenaje se ubicaron en las áreas con menor entrada de luz.
Cada vivienda cuenta con una distribución mínima de salón-cocina, dormitorio independiente y baño completo. La de mayor superficie incorpora además un vestidor y un aseo adicional, aportando un extra de confort y versatilidad.
Terraza de uso común
El patio trasero se acondicionó como una terraza de uso común, pensada para disfrutar especialmente durante los meses de verano, ofreciendo un espacio exterior agradable que amplía las posibilidades de ambas viviendas.
Este proyecto refleja nuestra apuesta por la rehabilitación eficiente de locales comerciales y su adaptación a las nuevas necesidades residenciales de la ciudad, optimizando los recursos disponibles y generando espacios habitables de calidad.
En este enlace puedes ver otros proyectos de reforma de locales para vivienda de Dolmen Arquitectos.




















