Reforma interior de piso en Gijón
Salón comedor con mucha luz y vistas privilegiadas
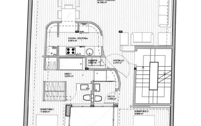
La reforma interior de esta vivienda situada en Gijón no supone ningún aumento de volumen, pues se modifica la vivienda solamente en cuanto a su distribución, con el cambio de trazado y diseño de instalaciones que ello conlleva.
Se han situado los locales húmedos lo más cerca posible del patio interior, ya que es donde se encuentran las bajantes en el edificio existente. Las estancias principales (salón–comedor y cocina) se sitúan volcadas hacia la zona de la fachada hacia la calle para poder disfrutar de luz y vistas privilegiadas.
La decoración de la vivienda y la distribución de los muebles ha servido para lograr una diferenciación de espacios sin la necesidad de utilizar para ello tabiques que dividan estancias de la casa.









