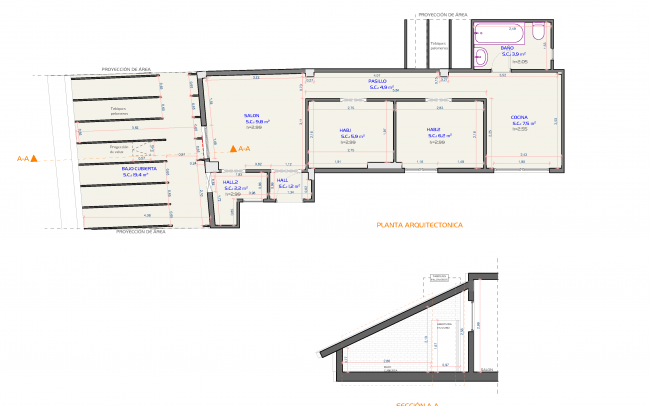
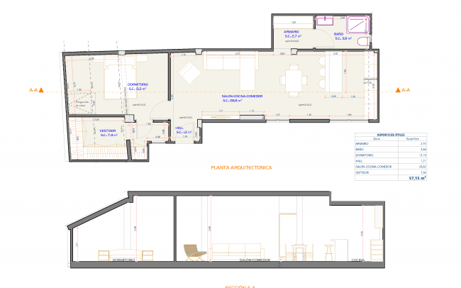
Dolmen Arquitectos se encargó de la reforma integral de esta vivienda bajocubierta en la calle Cataluña de Gijón.
Al ser totalmente interior se apostó por cambiar la distribución y abrir todas las estancias para generar mejor paso de luz, distribuyéndose en salón-cocina-comedor y una habitación, aprovechando al máximo el espacio.
Con los espacios diáfanos y abiertos, un cuidado estudio de los puntos de luz y elección de colores claros para paredes y suelos, se consigue crear mayor sensación de luminosidad y amplitud.
En este enlace pueden consultar más proyectos de reforma interior de vivienda llevados a cabo por Dolmen Arquitectos.
Client
Privado
Project Date
2023



















