Reforma de local para cambio de uso a vivienda en Luanco
Dolmen Arquitectos incluye entre sus servicios la reforma de locales para convertirlos en viviendas
Convertir un local comercial en una vivienda es una opción muy interesante y cada vez más utilizada en el mercado inmobiliario de España. Es lo que hemos hecho con este local de Luanco, Asturias, transformado para uso residencial tras una reforma completa.
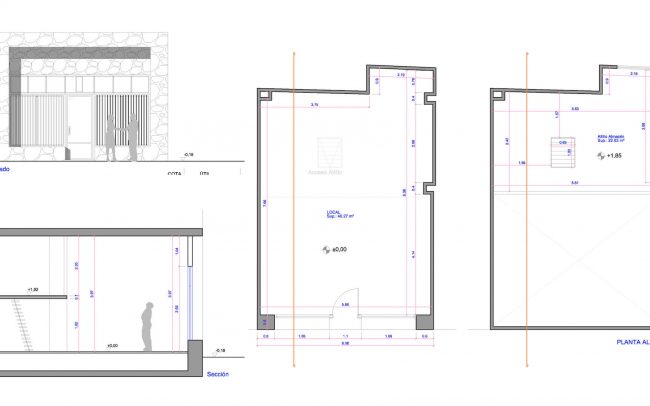
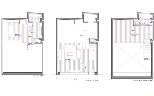
El local, situado en la calle San Roque 4, bajo, en Luanco, era utilizado anteriormente para actividades de hostelería. El programa funcional de la vivienda se plantea sin apenas compartimentación. Solo se independizan las piezas higiénicas, situadas en la planta inferior al fondo del local. Y se hace accesible en cumplimiento de las Normas de diseño en edificios destinados a viviendas, desde un espacio no estancial (en este caso el área de cocina) y ventilado a través de un conducto específico mediante extracción mecánica.
Un segundo aseo se plantea en el altillo existente y se ventila naturalmente a través de un hueco existente hacia patio de manzana.
Cumplimiento de las normas de edificios de viviendas
En la distribución del espacio diáfano del local, en el que se desarrolla el programa principal de la vivienda, se cumplen expresamente las disposiciones que en cuanto a ventilación e iluminación se incluyen en las citadas Normas de diseño autonómicas. Estas normas afectan a distancias laterales y fondos máximos, dimensiones de huecos y superficie del área iluminada por estos (en lo relativo a superficie tanto de ventilación, practicables, como de iluminación), etcétera.
Desde la calle se accede, a una cota de +18 cm. desde la vía pública, a la zona de estar-dormitorio (se permite compartir en un solo ámbito las áreas de convivencia y privacidad para desarrollo del programa mínimo de vivienda). En una plataforma a una cota inferior se plantea la cocina-comedor y en la plataforma superior (a +192cm), ya existente, se establece una zona sin uso específico, como almacén, con un aseo-limpieza.
La vivienda planteada se ha diseñado sobre la base de las condiciones higiénico-sanitarias establecidas en la normativa autonómica vigente y que, por tanto, aseguran que el uso habitacional se desarrolle conforme a unas condiciones de habitabilidad mínimas, superadas en este caso con holgura.
Si alguna vez han pensado en reformar un local comercial para dedicarlo a vivienda, en Dolmen Arquitectos podemos ayudarles. Contacten con nosotros a través de este enlace y hablamos.
Client
Privado
Project Date
2014
Category
Arquitectura · Reforma de locales para vivienda · Architecture · Premises












