Reforma interior en la central hidráulica protegida de La Malva, Asturias
Eliminación de tabiques y cambios en la iluminación para mejorar la vida de los trabajadores
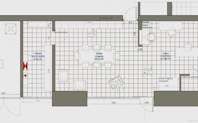
El proyecto de reforma de espacios interiores en la central hidráulica de La Malva, en Somiedo (Asturias), pretende generar una zona más amplia y cómoda para los empleados. La idea es que en esa zona puedan descansar y al mismo tiempo acceder fácilmente a la zona de control, sin tener que salir a la Sala Central de Generadores. La actual configuración de la zona no permite la comunicación entre estas estancias.
Con la eliminación de estos tabiques intermedios, la recuperación completa de la carpintería original de separación de las estancias con la Sala Central de Generadores y añadiendo a ésta un vidrio posterior que aporta aislamiento acústico al ruido generado en la sala central, se consigue generar un espacio útil y práctico para los trabajadores. Todas estas mejoras les permiten un uso cómodo de estas estancias.
Además, la futura apertura de esta central como museo, y por lo tanto su apertura al público, hace que esta reforma sea necesaria, ya que facilita que estas visitas no puedan acceder a la zona de trabajo de la central, al mismo tiempo que favorece la comunicación interna de los trabajadores.
La central hidráulica de La Malva, propiedad de Hidroeléctrica del Cantábrico, es un edificio que cuenta con protección integral según el Catálogo Urbanístico de Somiedo. Esto significa que se han tratado las actuaciones realizadas en el mismo con la sensibilidad que merece un edificio de estas características. Por tanto, a pesar de que se eliminan los tabiques del actual pasillo, se preservan los elementos protegidos y originales, como son el mobiliario de época empotrado en las paredes de la estancia y el armario-almacén con alicatado y azulejo de época en su interior.
Iluminación con tecnología LED
También hemos actuado para mejorar la iluminación existente en toda la central. Por un lado, ante la falta de iluminación existente en la Sala Central de Generadores para la correcta realización de los trabajos propios de ella, se propone la sustitución de las luminarias actuales. La sustitución se hará conservando el brazo mural existente y equipando las luminarias con lámparas de tecnología LED, lo que proporciona un nivel de iluminación adecuado para el trabajo.
Además, se sigue la misma idea para la iluminación de las fachadas exteriores, lo que conlleva mantener la estética actual de luminarias e iluminando mediante lámparas de tecnología LED de 30 W.
Además, incorporamos iluminación a la carretera de acceso mediante la reproducción de las lámparas existentes en la fachada principal, incluyendo un pie para convertirlas en farolas de calle pero manteniendo la estética presente en la central.
Gracias a esta serie de actuaciones, que parecen reducidas en comparación con la gran magnitud de toda la central, hemos conseguido aumentar la calidad del día a día de los trabajadores de la central hidráulica de La Malva. También mejoramos el aspecto visual de un edificio que a pesar de encontrarse catalogado y protegido, había caído en un olvido por el cual llevaban muchos años sin realizarse intervenciones en él.
Client
Hidroeléctrica del Cantábrico
Project Date
2017
















