Adecuación de accesibilidad de portal en Gijón
Creación de un itinerario accesible incluyendo una rampa exterior y bajar la cota de parada del ascensor
El proyecto para la adecuación de este portal y los servicios comunes en un edificio de viviendas de cinco plantas situado en la calle General Suárez Valdés, de Gijón, busca conseguir mejores condiciones de accesibilidad para sus habitantes. La idea es crear un recorrido accesible libre de obstáculos desde la entrada del edificio hasta la totalidad de las puertas de las viviendas.
Previamente a la realización de este proyecto,en el portal del inmueble existían barreras arquitectónicas que impedían una accesibilidad adecuada al edificio para las personas con movilidad reducida.
Portal y ascensor accesibles
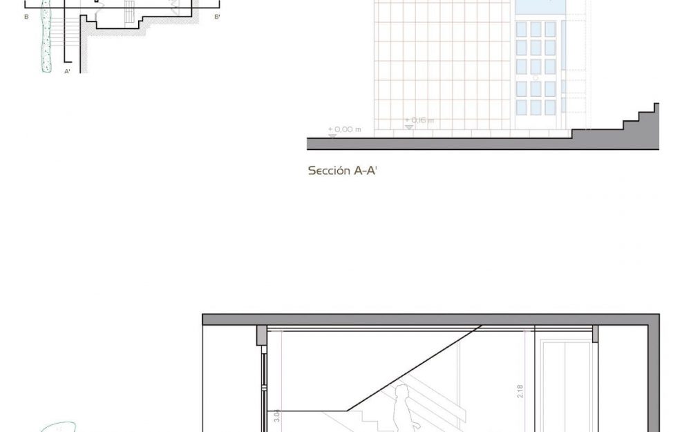
La existencia de un escalón de 16 cm. para acceder al portal y un tramo de cinco escalones que llevaba al ascensor hacía que este elemento se encontrara a 1’02 metros de altura respecto de la cota de la calle. Obviamente, esto no permitía que el ascensor fuera accesible para todas las personas.
Debido a que la altura a la que se encuentra el ascensor era demasiado grande para salvar únicamente con una rampa, se han tenido que realizar varias intervenciones que, unidas, llevan a la creación de un itinerario accesible:
- Construcción de una rampa en el exterior del portal, paralela a la fachada, que compensa la eliminación del escalón existente para acceder al portal.
- Eliminación del primer tramo de escalones y construcción de una rampa con una pendiente del 10% y que sube 34 cm.
- Bajada de la cota de parada del ascensor, dejando este con un foso mínimo de 50 cm.
Gracias a esta intervención se ha conseguido la accesibilidad total del portal, con un itinerario accesible libre de obstáculos. En este enlace pueden consultar nuestros proyectos de adecuación de la accesibilidad de portales.
Client
Comunidad de propietarios
Project Date
2017






