Rehabilitación de fachadas en Mieres, Asturias
Optamos por una fachada ventilada en la principal del inmueble y por un sistema de aislamiento SATE para el resto
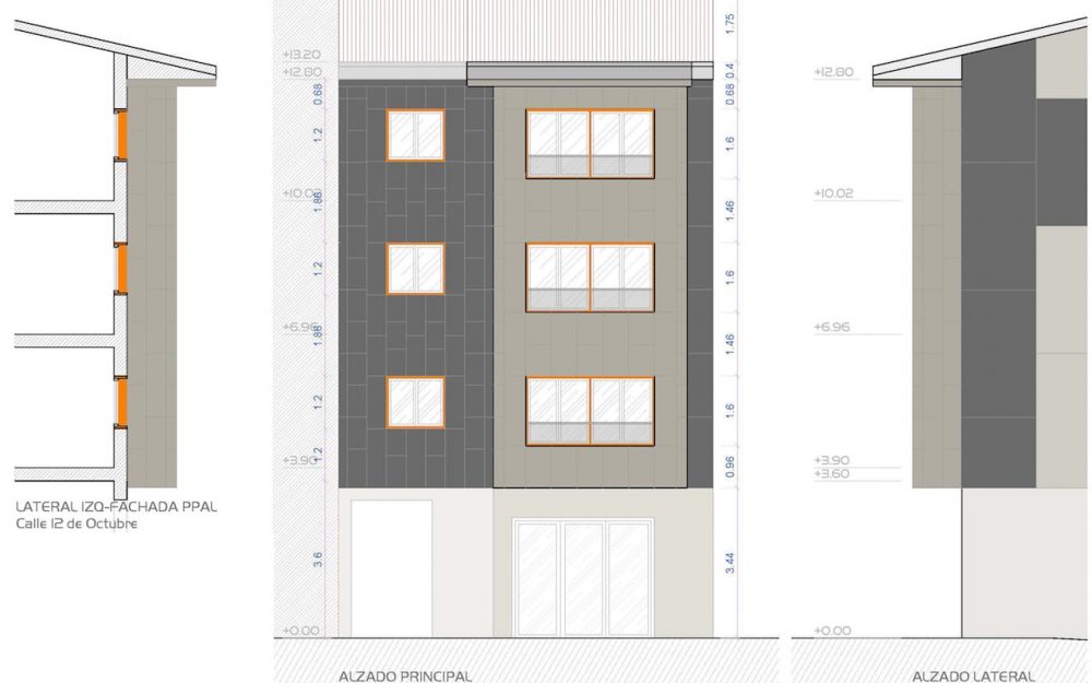
En el proyecto de rehabilitación de fachadas de este edificio en Mieres, Asturias, planteamos restaurar la fachada principal, que da a la calle 12 de Octubre, y el resto de fachadas perimetrales (a patio interior, medianera posterior y frente a la calle Puerto Rico) con las que cuenta el edificio reformado.
Igual que ha ocurrido con otros de nuestros proyectos de rehabilitación de fachadas, su evidente estado de deterioro, visible en grietas, desconchados y desprendimientos en el paramento vertical de fachada, puede suponer un problema de seguridad. Los hipotéticos desprendimientos que se puedan producir amenazan la integridad de los usuarios del inmueble y de los transeúntes.
Este proyecto aporta dos soluciones diferentes según la fachada de la que estemos hablando:
Solución de fachada ventilada (fachada principal)
Debido al ya citado y evidente deterioro tanto estético como de seguridad de la fachada objeto del presente documento, se plantea su rehabilitación mediante la retirada de los revestimientos existentes sueltos o mal adheridos, ya muy deteriorados.
Posteriormente, y previo tratamiento de la base resultante, se colocará un nuevo revestimiento a base de piezas cerámicas de gran formato. Emplearemos un sistema de fachada ventilada que utilizará una subestructura de soporte de aluminio.
El aislamiento, específico para este tipo de fachadas, estará constituido por una manta de lana mineral hidrofugada, revestida por una de sus caras con un tejido textil negro de gran resistencia mecánica y al desgarro.
Solución sistema SATE (resto de envolvente del inmueble)
Para la mejora y rehabilitación energética del resto de fachadas secundarias del edificio, se propone la adición de un sistema de aislamiento por el exterior (SATE). Previamente se llevarán a cabo los preceptivos trabajos de saneamiento y reparación de la base existente, que permitan la adecuada preparación del soporte para recibir la nueva solución con 40 mm. de aislamiento de placas de corcho tostado.
Client
Comunidad de propietarios
Project Date
2016







